Abhi Home
Small Space? Expanding Family? Bored with the old look? We have got you an entirely new Wood Castel Homes design that will add a modern touch to your old home. Now build your own house with an extended space by giving an innovative twist with flexible floor plans. It’s time to revolutionise your home to a new split level design to give your family a revolutionised renovated home with a lot more space.
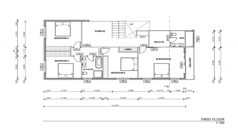
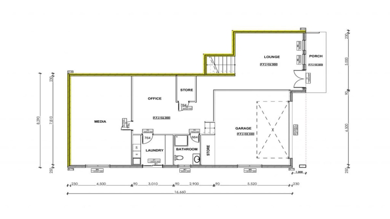
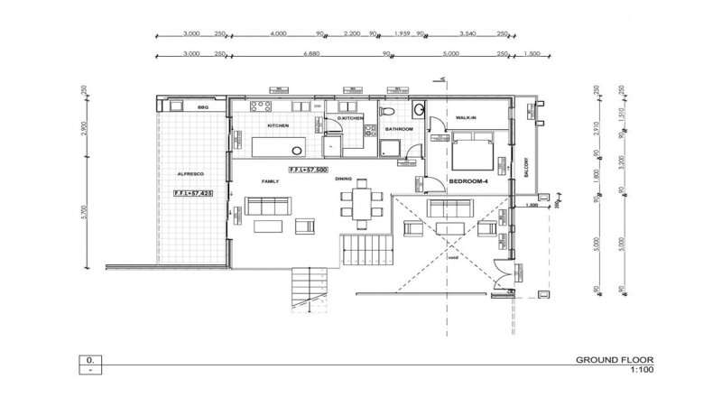
Abhi Home Of Floor Plan
Area Measurements
| Total Area (m2) | 318.73 |
| Total Landscape Area (m2) | 64.22 |
| Total Site Coverage (m2) | 182.37 |
| Ground Floor Width (m) | 22.04 |
| Ground Floor (m2) | 163.07 |
| Garage (m2) | 19.47 |
| Alfresco (m2) | 12.00 |
| Porch (m2) | 4.56 |
Our Inclusions
- Colored Driveway
- Flyscreens, Clothesline and so much more….
- 2700mm ceiling height throughout
- 40mm Caesarstone kitchen benchtop
- 900mm Omega appliances incl dishwasher
- Colorbond® fascia, gutter and downpipes in the standard builder’s range of colours
- Downlights through the house
- Ducted Air Conditioner
- Security Alarms
- 20mm Stonetop Vanity in bathrooms
- Tiling (from floor to ceiling) in Bathroom
- Floor coverings throughout incl tile stencil to alfresco and porch
